Dit mobiele tiny house biedt een unieke manier van wonen in direct contact met het landschap. Ontworpen voor mensen die licht, flexibel en duurzaam willen leven, beweegt de woning eenvoudig mee met seizoenen en gebruik. Zo ontstaat een leefstijl met minimale impact op de bodem en maximale vrijheid.
Het huis staat op een mobiel chassis en is gebouwd met een stevig houten frame en modulaire, hoogwaardig geïsoleerde panelen. Deze onderdelen zijn volledig demontabel en herbruikbaar, waardoor de woning circulair en toekomstbestendig is. De houten gevel vergrijst op natuurlijke wijze, terwijl het interieur rustig, licht en open is vormgegeven.
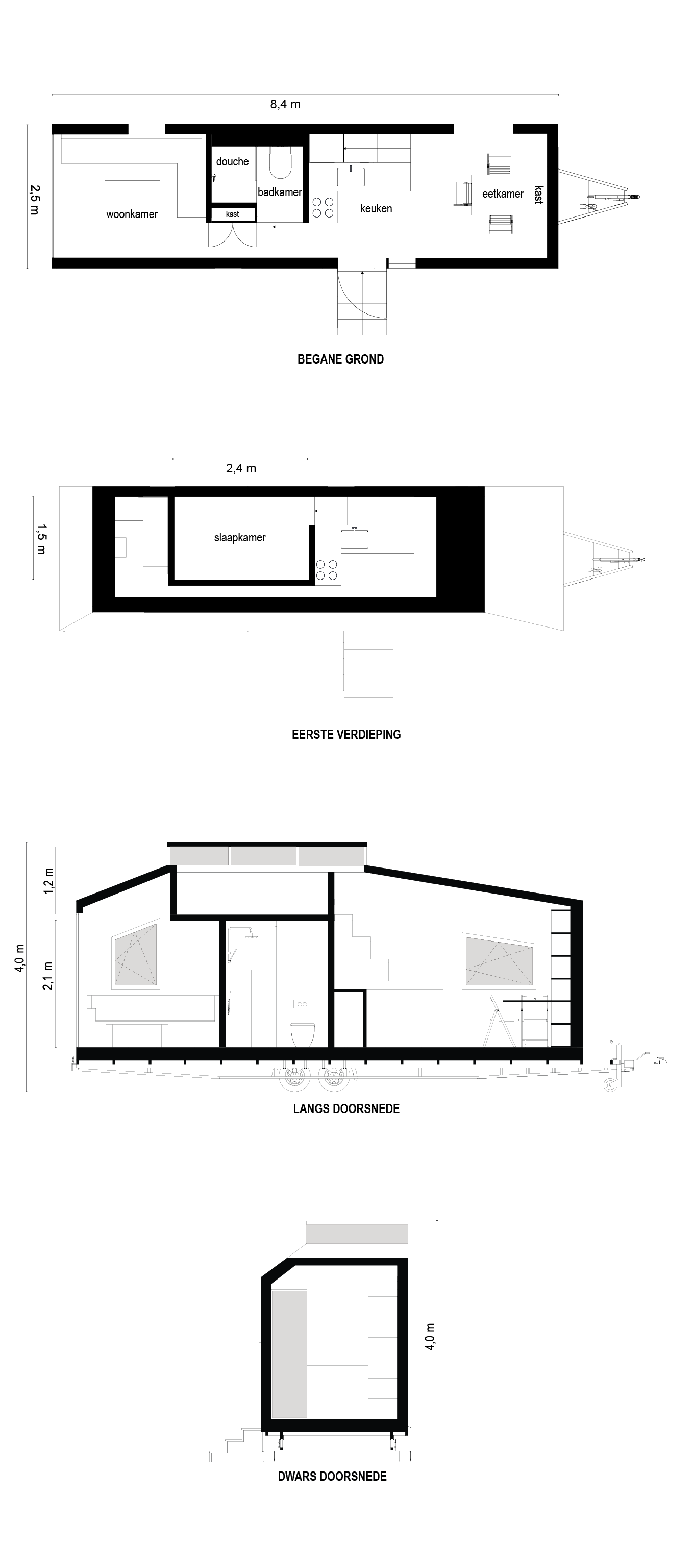
De compacte plattegrond is geïnspireerd op traditionele Nederlandse boerderijen, waarin wonen en werken samenkwamen. Op de begane grond vloeien keuken, eetruimte en woonkamer soepel in elkaar over, met royale zichtlijnen naar buiten. De verhoogde slaapruimte biedt geborgenheid, privacy en mooi daglicht via een doorlopend hoog raam.
Drie te openen ramen zorgen voor natuurlijke ventilatie, terwijl de grote glazen pui zonlicht diep de ruimte in trekt. Voor koude dagen is er vloerverwarming die energiezuinig en gelijkmatig verwarmt. De woning kan worden aangesloten op het net of volledig off-grid functioneren via zonnepanelen.
Dit tiny house combineert eenvoud, flexibiliteit en duurzaamheid in één doordacht ontwerp.
Mocht U interesse hebben neem dan contact met ons op via de onderstaande knop. Het Tiny house is vanaf Mei 2026 leverbaar
Mocht u interesse hebben neem dan contact op via de onderstaande knop
Back to Top